"Vermietet" Wohnung für Single mit hohen Ansprüchen
REF :
11072
Adresse:
Finanzielle Informationen:
Details:
Adresse
Ausstattung
Objektbeschreibung:
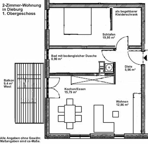
Es erwartet Sie eine sehr schöne, helle und barrierefreie Wohnung in einem Mehrfamilienhaus mit insgesamt 9 Wohneinheiten.
Vor dem Haus stellen Sie Ihren PKW auf den eigenen Stellplatz ab. Auf Wunsch kann ein Tiefgaragenstellplatz für monatlich 70,00 € hinzu angemietet werden.
Durch eine geschmackvolle Hauseingangstür gehen Sie in das modern gehaltene Treppenhaus.
Bequem mittels Personenaufzug oder über die Treppe gelangen Sie im 1. Obergeschoss vor Ihre Wohnungstür.
Wenn Sie Ihre Wohnungstür aufschließen befinden Sie sich in einer kleinen Diele, die Sie nach links in das lichtdurchflutete Wohn-/Esszimmer mit offenem Küchenbereich, geradeaus in das schicke Tageslichtbad oder nach rechts in das Schlafzimmer führt.
Das Wohn-/Esszimmer ist inkl. offenem Küchenbereich fast 29 m² groß. Gestalten Sie sich hier eine Wohlfühloase, in der Sie den größten Teil Ihrer wohlverdienten Freizeit verbringen können!
Vom Essbereich aus betreten Sie den fast 10 m² großen Balkon mit Westausrichtung.
Lichtdurchflutet wird der Raum durch bodentiefe Fenster.
Wie zuvor erwähnt gelangen Sie von der Diele auch in das Badezimmer. Ein Traumbad !!! Große, ebenerdige Dusche mit Echtglasduschkabine, Sanitärartikel in modernem Design, Tageslicht durch ein bodentiefes Fenster und geschmackvolle Fliesen bieten Ihnen einen tollen Anblick. Sie werden begeistert sein!
Die im Bad eingelassene Nische zwischen Zimmertür und Dusche bietet Platz für Ihre Waschmaschine und etwas zusätzlichen Stauraum.
Der nächste Raum ist das Schlafzimmer.
Das Zimmer wurde mittels einer Wand geteilt, so dass Sie sich den Traum von einem begehbaren Kleiderschrank erfüllen können.
Im Schlafbereich bietet Ihnen das bodentiefe Fenster angenehme Helligkeit.
Insgesamt wird Ihnen hier eine Wohnung präsentiert, die sich optimal für einen modebewussten Single anbietet.
Die auf dem Foto ersichtliche Einbauküche und weiteres Mobiliar bietet der jetzige Mieter gegen Abstandzahlung zum Kauf an. Wenn Sie z.B. die hübsche Küche mit den Elektrogeräten übernehmen möchten (keine Bedingung), so sind Preisverhandlungen mit dem jetzigen Mieter zu führen.
Ausstattung:
Die Wohnung verfügt über eine Fußbodenheizung (Fernwärme-/heizung - vergleichbar mit einer Gasheizung), die für wohlige Wärme an kalten Tagen sorgt.
Bodentiefe Fenster durchfluten die Räume mit Tageslicht.
Elektrisch bedienbare Rollläden verdunkeln bei Bedarf.
Die Internetgeschwindigkeit wird von einem Anbieter mit bis zu 100 MBit/s vorgeschlagen.
Der TV-Empfang wird über eine hauseigene Satellitenschüssel gewährleistet.
TV-Anschlüsse befinden sich im Wohnzimmer und im Schlafzimmer.
Im Mietpreis enthalten ist ein PKW-Außenstellplatz vor dem Gebäude.
Auf Wunsch kann ein Tiefgaragenstellplatz zusätzlich angemietet werden.
Zudem ist der Wohnung im Kellergeschoss ein Kellerverschlag zugeordnet.
Ihr Fahrrad kann im Kellergeschoss sicher und trocken untergestellt werden.
Der Fußbodenbelag besteht im Wohn-/Esszimmer sowie im Schlafzimmer und in der Diele aus Eichenparkett.
Das Badezimmer hat einen Fliesenboden.
Lage:
Das Mehrfamilienhaus befindet sich im nördlichen Teil von Dieburg. Die Nachbarstadt Münster ist nur wenige Minuten entfernt.
Einkaufsgelegenheiten finden Sie in der näheren Umgebung.
Eine Bushaltestelle ist fußläufig zu erreichen.
Die Auffahrten zu den vierspurig ausgebauten Bundesstraßen B 26 und B 45 Richtung Darmstadt, Aschaffenburg, Frankfurt und Hanau sind nur wenige Autominuten entfernt.
Verfügbarkeit ab:
01.03.2021
Sonstiges:
Die Haustierhaltung ist vom Vermieter nicht gewünscht.
Als Mieter wird eine Einzelperson gesucht. Vermietet wird vorzugsweise an Nichtraucher.
Alle objektbezogenen Angaben und Unterlagen stammen vom Vermieter.
Eine Gewähr und Haftung im Hinblick auf Daten, Größe, Güte, Vollständigkeit und Beschaffenheit sowie inhaltliche Richtigkeit kann daher nicht übernommen werden. Irrtum oder Auslassungen bleiben vorbehalten.
Fotos und Texte unterliegen dem Urheberschutz von ONYX Immobilien-Service. Unberechtigtes Kopieren und Verwenden für eigene Zwecke (privat oder gewerblich) ist nicht gestattet und wird abgemahnt.
Energieausweis:
Erstellungsdatum: 18.01.2014 gültig bis: 16.01.2024
Energieausweistyp: Bedarfsausweis
Gebäudetyp: Wohngebäude
Endenergiebedarf / Endenergieverbrauch: 61 kWh / (m²xa)
Wesentlicher Energieträger: Fernwärme
Baujahr lt. Energieausweis: 2012












